|
三片式法蘭球閥產品簡介: 三片式法蘭球閥閥座采用彈性密封結構,密封可靠,啟閉輕松。閥桿采用有倒密封的下裝式結構,閥腔異常升壓時,閥桿不會被沖出。閥體鑄造采用工藝,結構合理、造型美觀。驅動方式:手動、電動、氣動。可設置90°開關定位機構,根據需要加鎖以防止誤操作。 三片式法蘭球閥工作原理: 三片式法蘭球閥是用帶有圓形通道的球體作啟閉件,球體隨閥桿轉動實現啟閉動作的閥門。球閥的啟閉件是一個有孔的球體,繞垂直于通道的軸線旋轉,從而達到啟閉通道的目的。球閥主要用于截斷或接通管道和設備介質,也可用于流體的調節與控制,球閥流體阻力小,結構簡單,體積小,重量輕,緊密可靠,操作維修方便,不會引起閥門密封面的侵蝕,適用范圍廣。 三片式法蘭球閥產品特點: 1、 單閥座設計。消除了閥門中腔介質因異常升壓而影響使用安全的問題。 2、 低扭矩設計。特殊結構設計的閥桿,只需配一個小手把閥門就能輕松啟閉。 3、 啟閉無摩擦。這一功能完全解決了傳統閥門因密封面之間相互摩擦而影響密封的問題。 4、 三片式結構。對裝在管道上的閥門可直接在線檢查與維修,能有效減少裝置停車,降低成本。 5、 楔形密封結構。閥門是靠閥桿提供的機械力,將球楔壓到閥座上而密封,使閥門的密封性不受管線壓差變化的影響,在各種工況下密封性能都有可靠保證。 6、 密封面的自清潔結構。當球體傾離閥座時,管線中的流體沿球體密封面成360°均勻通過,不僅消除了高速流體對閥座局部的沖刷,也沖走了密封面上的聚積物,達到自清潔的目的。
三片式法蘭球閥概述: 三片式法蘭球閥結構,對裝在管道上的閥門可直接在線檢查與維修,能有效減少裝置停車,降低成本; 三片式球閥楔形密封結構,閥門是靠閥桿提供的機械力,將球楔壓到閥座上而密封,使閥門的密封性不受管線壓差變化的影響,在各種工況下密封性能都有可靠保證。 三片式法蘭球閥單閥座設計,消除了閥門中腔介質因異常升壓而影響使用安全的問題;三片式美標球閥低扭矩設計,特殊結構設計的閥桿,只需配一個小手把閥門就能輕松啟閉;啟閉無摩擦,這一功能完全解決了傳統閥門因密封面之間相互摩擦而影響密封的問題。
三片式法蘭球閥設計標準: APPLECABLE STANDARDS: 防爆中軸/全流Blow-out Proof stem/Full port 設計和制造標準按照Design: ASME B16.34,API608; 結構長度按照face toface : ASME B16.10; 法蘭端尺寸按照End Flange:ASME B16.5; 檢驗和測試按照Test: API598; 防火設計測試Fire Safe:API607;
三片式法蘭球閥產品特性: 閥桿帶有防靜電設置 閥桿防脫出裝置設計 鋼球球槽上有泄壓孔 采用脫臘精密鑄造 三片式法蘭球閥主要材料表:
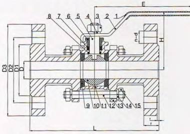
三片式法蘭球閥尺寸圖:
三片式法蘭球閥外形尺寸表:
三片式法蘭球閥產品應用: 三片式法蘭球閥的主要特點是本身結構緊湊,易于操作和維修,三片式法蘭球閥適用于水、溶劑、酸和天然氣等一般工作介質,而且還適用于工作條件惡劣的介質,如氧氣過氧化氫,甲烷和乙烯等。要求嚴格切斷的工況。 |
-
單閥座設計。消除了閥門中腔介質因異常升壓而影響使用安全的問題。
-
低扭矩設計。特殊結構設計的閥桿,只需配一個小手把閥門就能輕松啟閉。
-
可選裝配電動/氣動執行器可變成電動/氣動開關閥或電動/氣動切斷閥。
-
結構簡單、體積小、重量輕。
-
維修方便,球閥結構簡單,密封圈一般都是活動的,拆卸更換都比較方便。
-
根據用戶提供的流量、壓力提供選型規格書及控制方案圖。


